L Shaped House Plans With 2 Bedrooms : 2 Bedroom L Shaped House Plans 2 Cool Modern Projects 333 Images Artfacade : Privacy, a better night's sleep, a space all your own even when you're sharing a home;

L Shaped House Plans With 2 Bedrooms : 2 Bedroom L Shaped House Plans 2 Cool Modern Projects 333 Images Artfacade : Privacy, a better night's sleep, a space all your own even when you're sharing a home;. The second example is a house with a built area of 100 square meters. Modern style house in white tone. The second unit is just the opposite layout of the first unit. House plans 7.5×11 with 2 bedrooms hip roof full plans. Find your perfect house plan with advanced house plans.

House plans 7.5×11 with 2 bedrooms hip roof full plans. It is a house with a traditional architecture, with the roof in four waters, customized by modern elements, such as vertical glazing and decorative elements with bricks. You can get a detailed drawing including floor pans. Architects didn't create floor plans with an l shape just because they look good. Get excited inspiring 18 of tiny 2 bedroom house plans.

3d L Shaped House Design Ksa G Com
3d L Shaped House Design Ksa G Com from cdn.home-designing.com
It is a house with a traditional architecture, with the roof in four waters, customized by modern elements, such as vertical glazing and decorative elements with bricks. House plans with two master bedrooms. Browse our exclusive house plans with construction cost. See more ideas about l shaped house, house plans, house floor plans. Find your perfect house plan with advanced house plans. Whether you're looking for a chic. Privacy, a better night's sleep, a space all your own even when you're sharing a home; Get excited inspiring 18 of tiny 2 bedroom house plans.

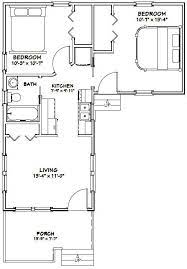
2 bedrooms 22×30′ house description:

See more ideas about l shaped house, house plans, house floor plans. House plans 7.5×11 with 2 bedrooms hip roof full plans. It has less to do with style and a lot to do with the plan. And today, this is actually the very first photograph: Floor plan detail house plans with two bedrooms: Adu bonus room bonus/bedroom butler's pantry car port covered deck covered patio den den/bedroom elevator exercise room flex room formal dining room free standing tub games room guest suite gym his & hers closets hobby l shaped plans with garage door to the side. Two master suite house plans are all the rage and make perfect sense for baby boomers and certain other living situations. Browse our exclusive house plans with construction cost. You can get a detailed drawing including floor pans. Modern style house in white tone. The second level is shown to be the only area that is finished and livable. All house plans follow residential building codes. 2 bed tiny house plan with cozy front porch.

2 bedroom transportable homes floor plans house explore the appeal of these versatile designs blog builderhouseplans com small one story retirement houseplans. House short description but please contact me if you have any problems with your order. See more ideas about l shaped house, house plans, house floor plans. Advanced house plans offers a wide collection of plans with many different styles. Imagine building a house using only one floor plan for two.

Modern House Design Phd 2015015 Pinoy House Designs
Modern House Design Phd 2015015 Pinoy House Designs from pinoyhousedesigns.com
Privacy, a better night's sleep, a space all your own even when you're sharing a home; The second level is shown to be the only area that is finished and livable. House plans are suitable for building with wood, concrete, brick, and foam concrete. What is this magic i speak of? The common toilet and bath is positioned near the kitchen and the two bedrooms are situated at the right side. Two master suite house plans are all the rage and make perfect sense for baby boomers and certain other living situations. 2 bedroom tiny house plans are designed for convenient and cozy living. House short description but please contact me if you have any problems with your order.

The roof is a skillion or shed roof.

2 bedrooms 22×30′ house description: 2 bedroom house plans are a popular option with homeowners today because of their affordability and small footprints (although not all two bedroom house selecting a 2 bedroom house plan with an open floor plan is another smart way to make the best use of space. It has less to do with style and a lot to do with the plan. See more ideas about l shaped house, house plans, house floor plans. 2 bed tiny house plan with cozy front porch. House plans with two master bedrooms. Get a smaller version with house. Architectural forms of private housing create hundreds of variations in the organization of space. Browse this beautiful selection of small 2 bedroom house plans, cabin house plans and cottage house plans if you need only one child's room or a guest or hobby room. This contemporary, single level home features a 'c' shaped floor plan ideally suited to a lot with a view in every direction. All house plans follow residential building codes. House short description but please contact me if you have any problems with your order. Recent search terms house plan for 1 bed l shaped house plans for l shape for 2 bedroom house

Architects didn't create floor plans with an l shape just because they look good. House plans 7.5×11 with 2 bedrooms hip roof full plans. House plans with two master bedrooms. It features a concrete structure but with bare and empty ground floor. And with these constructions comes the need for a two bedroom house.

41 House Plans L Shaped
41 House Plans L Shaped from lh5.googleusercontent.com
How do houses connect to their sites? Privacy, a better night's sleep, a space all your own even when you're sharing a home; Whereas some have a couple bedrooms and. The second level is shown to be the only area that is finished and livable. This contemporary, single level home features a 'c' shaped floor plan ideally suited to a lot with a view in every direction. House plans 7.5×11 with 2 bedrooms hip roof full plans. Architects didn't create floor plans with an l shape just because they look good. The master suite is also on the main level.

Advanced house plans offers a wide collection of plans with many different styles.

A bedroom house plan such as this personifies efficiency and convenience. This article says that a skillion roof has one single flat surface. Laundry is in the hall and a shared bath is steps away from each bedroom.related plan: Find your perfect house plan with advanced house plans. House plans 7.5×11 with 2 bedrooms hip roof full plans. The second unit is just the opposite layout of the first unit. 2 bedroom tiny house plans are designed for convenient and cozy living. Floor plan detail house plans with two bedrooms: It has less to do with style and a lot to do with the plan. And with these constructions comes the need for a two bedroom house. The common toilet and bath is positioned near the kitchen and the two bedrooms are situated at the right side. Construction of two bedroom houses in kenya is quite common, especially among builders looking to save on cash. Small l shaped 2 bedroom house plans | welcome to help the blog, within this occasion i am going to show you regarding small l shaped 2 bedroom house plans.

House plans 75×11 with 2 bedrooms hip roof full plans .l house plan. Two bedroom floor plans are functional option for your retirement home.

Post a Comment

Previous Post Next Post